3 Bedroom
2 Bathroom
920 sqft
$99,900
Wow! Ready to swing a hammer? This unique opportunity awaits. Most of the exterior and interior framing is done, Gas line in house , all other utilities will need to be brought in. Loft design with bedrooms upstairs and living room/kitchen on main, plus opportunity to develop additional suites in full height basement. Proposed plans available upon accepted offer. Call today for more details (id:51699)
Property Details
|
MLS® Number
|
SK020987 |
|
Property Type
|
Single Family |
|
Neigbourhood
|
Pleasant Hill |
Building
|
Bathroom Total
|
2 |
|
Bedrooms Total
|
3 |
|
Basement Type
|
Full |
|
Constructed Date
|
2023 |
|
Heating Fuel
|
Natural Gas |
|
Stories Total
|
2 |
|
Size Interior
|
920 Sqft |
|
Type
|
House |
Parking
Land
|
Acreage
|
No |
|
Size Frontage
|
25 Ft |
|
Size Irregular
|
3245.00 |
|
Size Total
|
3245 Sqft |
|
Size Total Text
|
3245 Sqft |
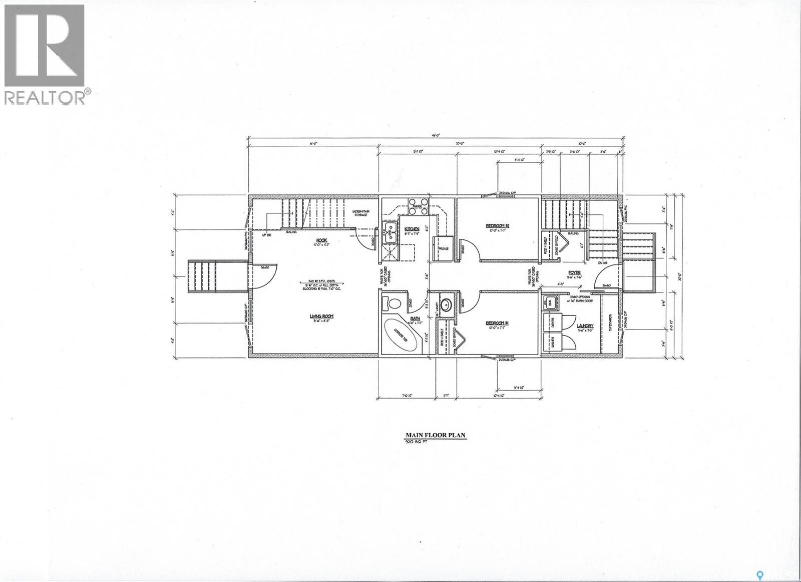
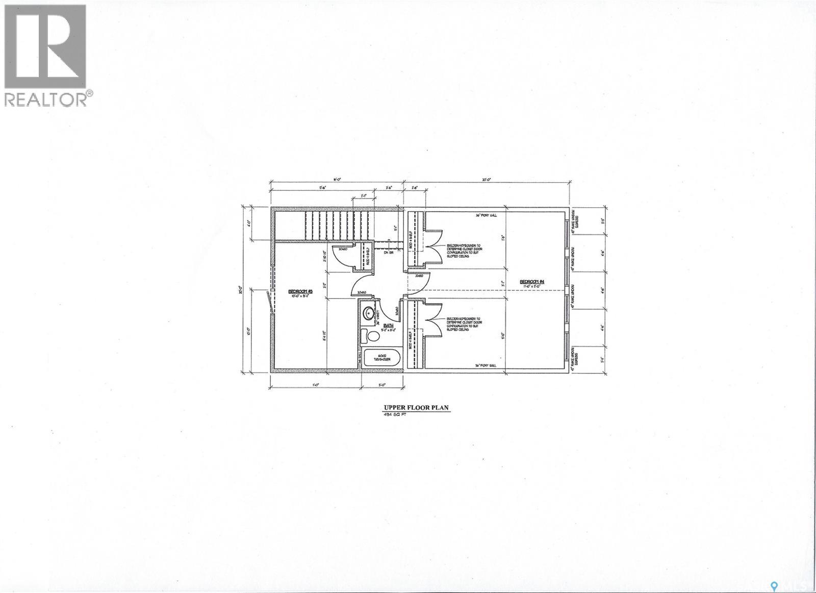
Rooms
| Level |
Type |
Length |
Width |
Dimensions |
|
Second Level |
Bedroom |
|
|
15'2'' x 10' |
|
Second Level |
Bedroom |
|
|
17' x 12' |
|
Second Level |
4pc Bathroom |
|
|
8'2'' x 5'2'' |
|
Basement |
Bedroom |
|
|
11.0' x 9.0' |
|
Main Level |
Living Room |
|
|
15'6'' x 8'8'' |
|
Main Level |
Kitchen |
|
|
8'11' x 7'9'' |
|
Main Level |
5pc Bathroom |
|
|
7'7'' x 6'8'' |
https://www.realtor.ca/real-estate/28996824/1913-20th-street-w-saskatoon-pleasant-hill