3 Bedroom
3 Bathroom
1231 sqft
Bungalow
Central Air Conditioning, Air Exchanger
Forced Air
Lawn, Underground Sprinkler
$524,900
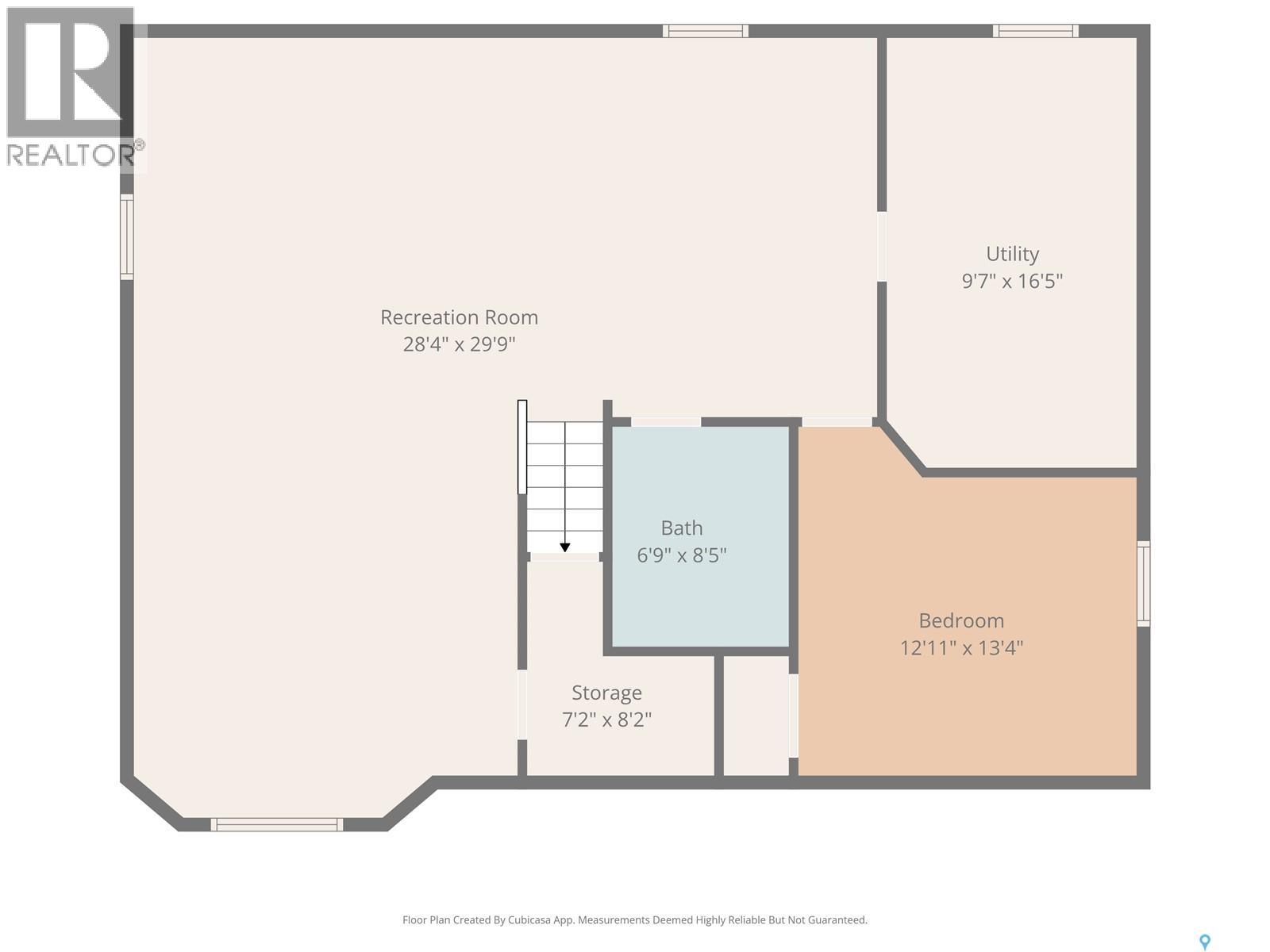
Welcome to 208 MacCormack Rd Martensville SK, this beautiful fully developed Bungalow located in the heart of Martensville, one of the city’s most sought-after family areas. Set on a spacious 50' x 124' ft. lot, this Bungalow offers both comfort and convenience, perfect for growing families or those looking to settle in a welcoming community. Step inside this 1,231 sq. ft. home with 3 bedrooms, 3 bathrooms, and a main floor den/office while providing ample space for everyone. Large open concept main level features south facing dinning and living room with large windows overlooking back yard space. Kitchen with walk in corner Pantry, large island and loads of counter space and cabinets. The primary bedroom features a private 3 pcs en-suite with walk in shower and a walk-in closet, giving you your own personal retreat. Stay cool in the summer with central air conditioning and all appliances are included with this home. The developed basement adds valuable living space with a family room, home gym or recreation space, wet bar area and a large 3rd bedroom. Utility room with laundry and lots of space for storage. Outdoors, the landscaped yard is an entertainer’s dream, complete with a large south facing covered deck entertainment area that’s perfect for summer BBQs or quiet evenings. The double attached garage is fully finished & insulated, providing comfort and extra storage year-round. Located just 2 blocks from nearby Elementary school, 1 block to parks, lakes & walking trails, and a sport court green space 1/2 block away for the kids. Don’t miss your chance to own this exceptional home in one of the city’s most desirable communities! (id:51699)
Property Details
|
MLS® Number
|
SK024354 |
|
Property Type
|
Single Family |
|
Features
|
Treed, Rectangular, Double Width Or More Driveway, Sump Pump |
|
Structure
|
Deck |
Building
|
Bathroom Total
|
3 |
|
Bedrooms Total
|
3 |
|
Appliances
|
Washer, Refrigerator, Dishwasher, Dryer, Microwave, Alarm System, Humidifier, Window Coverings, Stove |
|
Architectural Style
|
Bungalow |
|
Basement Development
|
Finished |
|
Basement Type
|
Full (finished) |
|
Constructed Date
|
2006 |
|
Cooling Type
|
Central Air Conditioning, Air Exchanger |
|
Fire Protection
|
Alarm System |
|
Heating Fuel
|
Natural Gas |
|
Heating Type
|
Forced Air |
|
Stories Total
|
1 |
|
Size Interior
|
1231 Sqft |
|
Type
|
House |
Parking
|
Attached Garage
|
|
|
Parking Space(s)
|
4 |
Land
|
Acreage
|
No |
|
Fence Type
|
Fence |
|
Landscape Features
|
Lawn, Underground Sprinkler |
|
Size Frontage
|
50 Ft |
|
Size Irregular
|
6700.00 |
|
Size Total
|
6700 Sqft |
|
Size Total Text
|
6700 Sqft |
Rooms
| Level |
Type |
Length |
Width |
Dimensions |
|
Basement |
Family Room |
14 ft ,2 in |
14 ft ,2 in |
14 ft ,2 in x 14 ft ,2 in |
|
Basement |
Other |
28 ft |
13 ft ,9 in |
28 ft x 13 ft ,9 in |
|
Basement |
3pc Bathroom |
|
|
X x X |
|
Basement |
Bedroom |
12 ft ,10 in |
11 ft ,4 in |
12 ft ,10 in x 11 ft ,4 in |
|
Basement |
Laundry Room |
16 ft ,1 in |
9 ft ,4 in |
16 ft ,1 in x 9 ft ,4 in |
|
Main Level |
Foyer |
5 ft ,5 in |
8 ft ,9 in |
5 ft ,5 in x 8 ft ,9 in |
|
Main Level |
Den |
9 ft ,6 in |
10 ft ,10 in |
9 ft ,6 in x 10 ft ,10 in |
|
Main Level |
Kitchen |
12 ft ,9 in |
10 ft ,1 in |
12 ft ,9 in x 10 ft ,1 in |
|
Main Level |
Dining Room |
9 ft ,8 in |
9 ft ,11 in |
9 ft ,8 in x 9 ft ,11 in |
|
Main Level |
Living Room |
15 ft ,2 in |
14 ft ,6 in |
15 ft ,2 in x 14 ft ,6 in |
|
Main Level |
Bedroom |
9 ft ,4 in |
10 ft ,9 in |
9 ft ,4 in x 10 ft ,9 in |
|
Main Level |
4pc Bathroom |
|
|
X x X |
|
Main Level |
Primary Bedroom |
15 ft |
11 ft ,7 in |
15 ft x 11 ft ,7 in |
|
Main Level |
4pc Ensuite Bath |
|
|
X x X |
https://www.realtor.ca/real-estate/29127070/208-maccormack-road-martensville