5 Bedroom
4 Bathroom
1800 sqft
Bi-Level
Fireplace
Central Air Conditioning, Air Exchanger
Forced Air
Lawn, Underground Sprinkler
$349,000
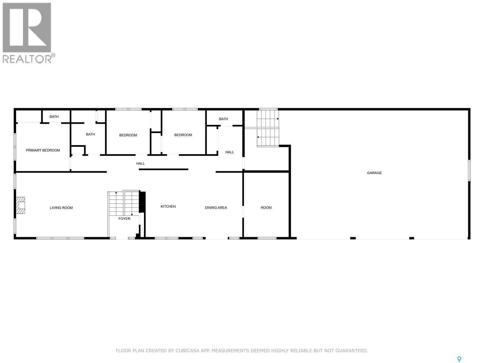
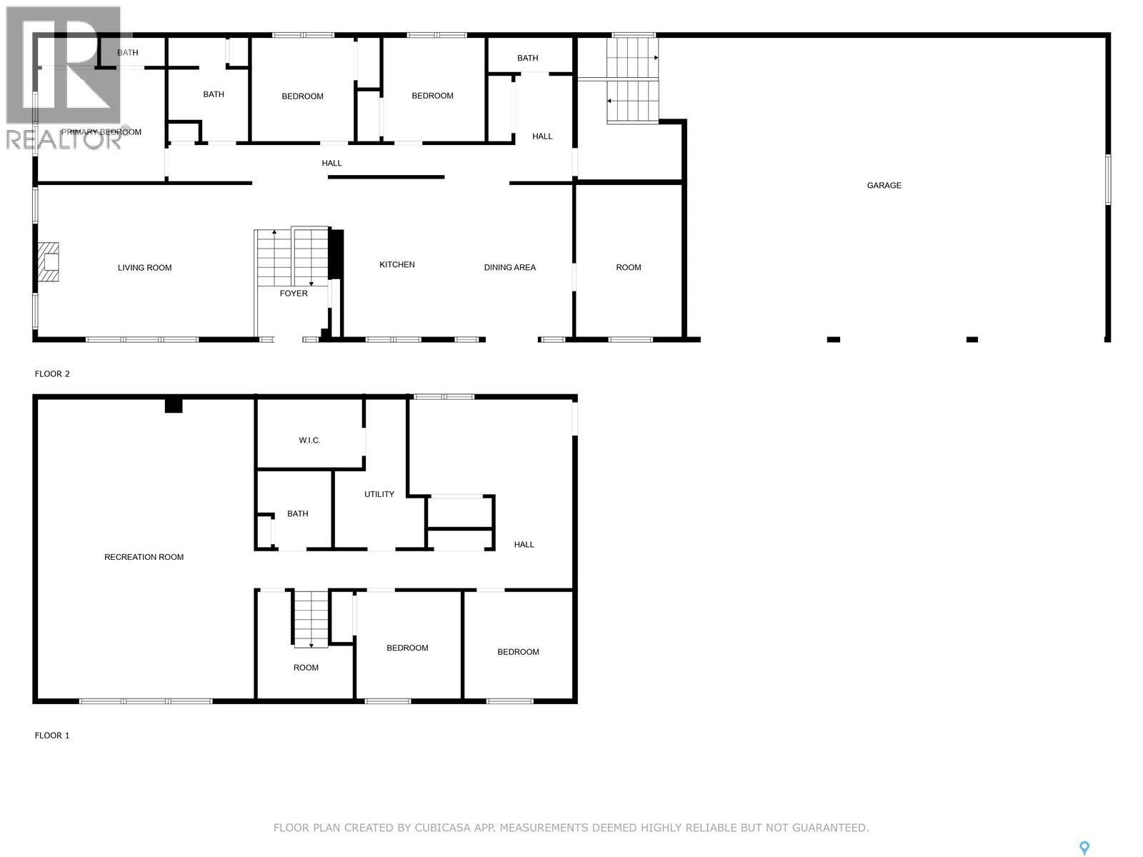
Welcome to 100 Bartlett Avenue in the lovely town of Kinistino! This move-in ready bi-level family home shows pride of ownership throughout, and has space to spare! Park in the triple attached garage or triple asphalt driveway- pause to admire the established and low-maintenance lawn space- and make your way inside! The upper level features a spacious sitting room with large windows and a new gas fireplace finished with real stone– relax and enjoy the view of the schoolyard park just across the street! Also upstairs is the generous kitchen with new countertops and fixtures plus solid wood cabinetry. The attached dining room sports new garden doors opening onto the upgraded composite raised deck, complete with no-maintenance aluminum rails. You’ll also find a bonus room, three large bedrooms, and a 4-pc bathroom plus a half bath and an ensuite upstairs. The lower level offers just as much real estate, open and bright throughout, with a large living area, a newly updated 3-pc bath, and two more finished bedrooms. You can also access the garage from both levels of the house for easy access. Upgrades have been invested in throughout the home, with new windows in 2019/20, a new water heater in 2021, and even more to discover–come and see if this could be your new home! (id:51699)
Property Details
|
MLS® Number
|
SK017034 |
|
Property Type
|
Single Family |
|
Features
|
Treed |
|
Structure
|
Deck |
Building
|
Bathroom Total
|
4 |
|
Bedrooms Total
|
5 |
|
Appliances
|
Washer, Refrigerator, Dishwasher, Dryer, Oven - Built-in, Window Coverings, Garage Door Opener Remote(s), Hood Fan, Central Vacuum - Roughed In, Stove |
|
Architectural Style
|
Bi-level |
|
Basement Development
|
Finished |
|
Basement Type
|
Full (finished) |
|
Constructed Date
|
1983 |
|
Construction Style Attachment
|
Detached |
|
Cooling Type
|
Central Air Conditioning, Air Exchanger |
|
Fireplace Fuel
|
Gas |
|
Fireplace Present
|
Yes |
|
Fireplace Type
|
Conventional |
|
Heating Fuel
|
Natural Gas |
|
Heating Type
|
Forced Air |
|
Size Interior
|
1800 Sqft |
|
Type
|
House |
Parking
|
Attached Garage
|
|
|
Parking Space(s)
|
6 |
Land
|
Acreage
|
No |
|
Landscape Features
|
Lawn, Underground Sprinkler |
|
Size Frontage
|
50 Ft |
|
Size Irregular
|
6000.00 |
|
Size Total
|
6000 Sqft |
|
Size Total Text
|
6000 Sqft |
Rooms
| Level |
Type |
Length |
Width |
Dimensions |
|
Basement |
Bonus Room |
|
|
9'5" x 8'5" |
|
Basement |
Living Room |
|
|
28'1 x 19'8" |
|
Basement |
3pc Bathroom |
|
|
7'0" x 5'0" |
|
Basement |
Bedroom |
|
|
9'11" x 9'10" |
|
Basement |
Other |
|
|
6'11" x 6'8" |
|
Basement |
Bedroom |
|
|
9'11" x 10'2" |
|
Basement |
Bonus Room |
|
|
17'8" x 7'2" |
|
Main Level |
Kitchen/dining Room |
27 ft |
18 ft |
27 ft x 18 ft |
|
Main Level |
Bonus Room |
|
|
14'4" x 9'6" |
|
Main Level |
Kitchen |
|
|
12'6" x 6'10" |
|
Main Level |
Living Room |
|
|
14'6" x 19'5" |
|
Main Level |
Primary Bedroom |
|
|
10'10" x 11'0" |
|
Main Level |
2pc Ensuite Bath |
|
|
2'5" x 5'5" |
|
Main Level |
4pc Bathroom |
|
|
9'6" x 4'8" |
|
Main Level |
Bedroom |
|
|
9'7" x 9'9" |
|
Main Level |
Bedroom |
|
|
9'6" x 9'9" |
|
Main Level |
Foyer |
|
|
10'5" x 4'9" |
|
Main Level |
2pc Bathroom |
|
|
2'11" x 7'0" |
|
Main Level |
Other |
|
|
5'2" x 7'4" |
https://www.realtor.ca/real-estate/28792942/100-bartlett-avenue-kinistino