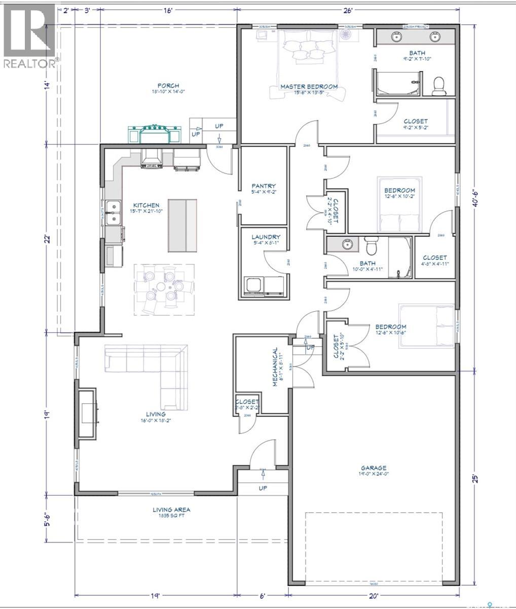
3 Bedroom
2 Bathroom
1835 sqft
Bungalow
Central Air Conditioning, Air Exchanger
Forced Air
$475,000
New Build Bungalow - welcome to your future home! Construction is complete. This spacious 1,835 sq. ft. bungalow offers the perfect blend of comfort, style, and flexibility. With three generously sized bedrooms and two full bathrooms, this residence is designed for modern living and optimal convenience. Enjoy the benefits of a thoughtfully planned layout, including an above-grade mechanical room for easy access and future maintenance. The open-concept main living area is perfect for entertaining family and friends, while large windows invite natural light throughout the home. High-quality materials and craftsmanship from a reputable builder are evident throughout every corner of the home. Price does not include any appliances, landscaping, fencing or applicable taxes. Call today to schedule a viewing. (id:51699)
Property Details
|
MLS® Number
|
SK021214 |
|
Property Type
|
Single Family |
|
Features
|
Corner Site, Other, Rectangular, Wheelchair Access, Double Width Or More Driveway, Sump Pump |
Building
|
Bathroom Total
|
2 |
|
Bedrooms Total
|
3 |
|
Architectural Style
|
Bungalow |
|
Basement Development
|
Not Applicable |
|
Basement Type
|
Crawl Space (not Applicable) |
|
Constructed Date
|
2026 |
|
Construction Style Attachment
|
Detached |
|
Cooling Type
|
Central Air Conditioning, Air Exchanger |
|
Heating Fuel
|
Natural Gas |
|
Heating Type
|
Forced Air |
|
Stories Total
|
1 |
|
Size Interior
|
1835 Sqft |
|
Type
|
House |
Parking
|
Attached Garage
|
|
|
Parking Pad
|
|
|
Heated Garage
|
|
|
Parking Space(s)
|
4 |
Land
|
Acreage
|
No |
|
Size Frontage
|
60 Ft |
|
Size Irregular
|
9148.00 |
|
Size Total
|
9148 Sqft |
|
Size Total Text
|
9148 Sqft |
Rooms
| Level |
Type |
Length |
Width |
Dimensions |
|
Main Level |
Kitchen |
|
|
21'10" x 15'7" |
|
Main Level |
Living Room |
|
|
18'2" x 16' |
|
Main Level |
Laundry Room |
|
|
8'1" x 5'4" |
|
Main Level |
4pc Bathroom |
|
|
10' x 5' |
|
Main Level |
Other |
|
|
9' x 6'1" |
|
Main Level |
Bedroom |
|
|
10'6" x 12'6" |
|
Main Level |
Bedroom |
|
|
10'2" x 12'6" |
|
Main Level |
Primary Bedroom |
|
|
13'5" x 15'6" |
|
Main Level |
3pc Ensuite Bath |
|
|
7'10" x 9'2" |
https://www.realtor.ca/real-estate/29007546/21-murraydale-crescent-maple-creek