3 Bedroom
2 Bathroom
1335 sqft
Bi-Level
Forced Air
$599,200
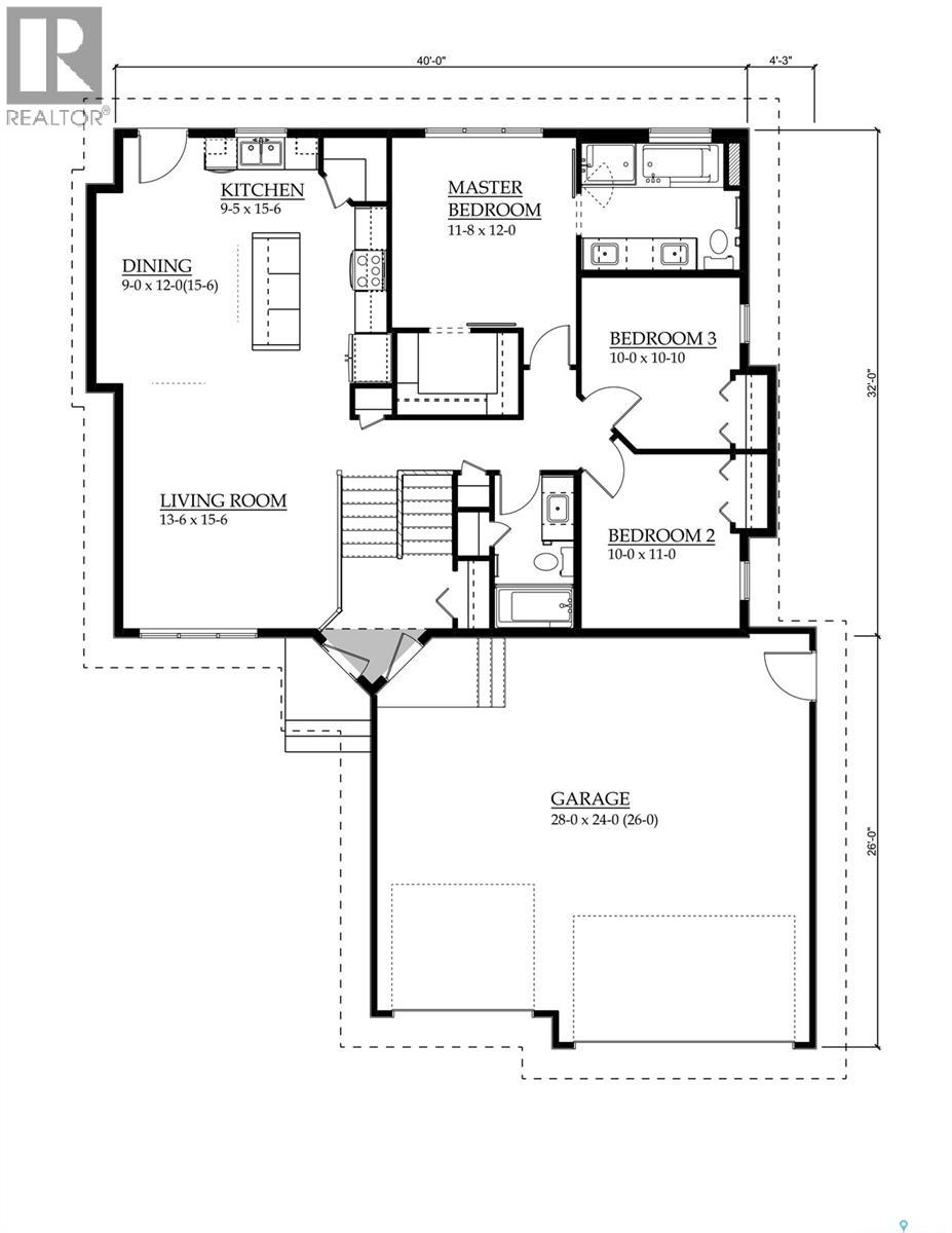
Features & Amenities: -1335 sq. Bi-Level -3 Bedrooms and 2 Bathroom -3 Car Garage -Kitchen with pantry and Island -Soft Close Cabinetry Throughout -LED Light Bulbs Throughout -High-Efficiency Furnace and Power Vented Hot Water Heater -HRV Unit -10 Year Saskatchewan New Home Warranty -GST and PST included in purchase price. GST and PST rebate back to builder. (id:51699)
Property Details
|
MLS® Number
|
SK031195 |
|
Property Type
|
Single Family |
|
Features
|
Other, Rectangular |
Building
|
Bathroom Total
|
2 |
|
Bedrooms Total
|
3 |
|
Appliances
|
Central Vacuum - Roughed In |
|
Architectural Style
|
Bi-level |
|
Basement Development
|
Unfinished |
|
Basement Type
|
Full (unfinished) |
|
Constructed Date
|
2025 |
|
Construction Style Attachment
|
Detached |
|
Heating Fuel
|
Natural Gas |
|
Heating Type
|
Forced Air |
|
Size Interior
|
1335 Sqft |
|
Type
|
House |
Parking
|
Attached Garage
|
|
|
Parking Space(s)
|
6 |
Land
|
Acreage
|
No |
|
Size Frontage
|
54 Ft |
|
Size Irregular
|
54x131 |
|
Size Total Text
|
54x131 |
Rooms
| Level |
Type |
Length |
Width |
Dimensions |
|
Main Level |
Foyer |
|
|
x x x |
|
Main Level |
Living Room |
15 ft ,6 in |
13 ft ,6 in |
15 ft ,6 in x 13 ft ,6 in |
|
Main Level |
Dining Room |
12 ft |
9 ft |
12 ft x 9 ft |
|
Main Level |
Kitchen |
15 ft ,6 in |
9 ft ,5 in |
15 ft ,6 in x 9 ft ,5 in |
|
Main Level |
4pc Bathroom |
|
|
X x X |
|
Main Level |
Primary Bedroom |
12 ft |
11 ft ,8 in |
12 ft x 11 ft ,8 in |
|
Main Level |
5pc Bathroom |
|
|
X x X |
|
Main Level |
Bedroom |
10 ft ,10 in |
10 ft |
10 ft ,10 in x 10 ft |
|
Main Level |
Bedroom |
11 ft |
10 ft |
11 ft x 10 ft |
https://www.realtor.ca/real-estate/29515865/709-ballesteros-crescent-warman