LOADING

74 Aaron Drive North Qu'appelle Rm No. 187, Saskatchewan S0G 1S0

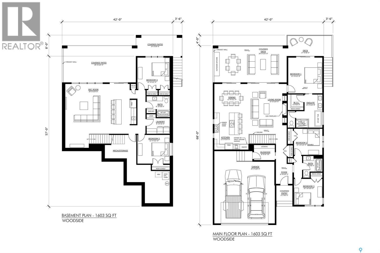
5 Bedroom 3 Bathroom 1603 sqft
Bungalow Fireplace Central Air Conditioning, Air Exchanger Forced Air Waterfront

$1,239,900

Have you ever imagined waking up to calm water views, fresh lake air, and the quiet rhythm of nature—without giving up the convenience of the city? Just a short drive from the city, this stunning lakefront opportunity invites you to experience the best of both worlds. Welcome to 74 Aaron Drive on beautiful Echo Lake, —a sought-after destination known for its scenic shoreline, recreational activities, and relaxed community atmosphere. This thoughtfully designed walkout bungalow by Robinson Residential offers 1,603 sq. ft. on each level, providing generous space for both everyday living and entertaining. The main floor features three bedrooms and two bathrooms, including a beautifully designed primary suite. The fully developed lower level adds two additional bedrooms and a third bathroom, making it perfect for family, guests, or even a dedicated home office or recreation area. Every detail has been planned with comfort and quality in mind. The home will include: • A drilled well for reliable water supply • A 2,500-gallon septic tank system • A commercial reverse osmosis (RO) water system • A custom tile shower and freestanding tub for a spa-like bathroom experience • A cozy fireplace to anchor the living space • A completed outdoor deck ideal for enjoying lake views and summer evenings. This exceptional home will be built by Authentic Developments, known for quality craftsmanship and attention to detail. Best of all, construction has not yet started, which means you have the rare opportunity to customize the design, finishes, and details to match your personal style and budget. From cabinetry and flooring to layout adjustments and finishing touches, you can truly create a home that reflects your vision of lakefront living. If you’ve been dreaming about a lifestyle where mornings begin with lake views and evenings end with peaceful sunsets, 74 Aaron Drive on Echo Lake could be the perfect place to start your new chapter. (id:51699)

Property Details

MLS® Number SK030051
Property Type Single Family
Neigbourhood Echo Lake
Features Recreational, Sump Pump
Structure Deck
Water Front Name Echo Lake
Water Front Type Waterfront

Building

Bathroom Total 3
Bedrooms Total 5
Architectural Style Bungalow
Basement Development Finished
Basement Type Full (finished)
Constructed Date 2026
Construction Style Attachment Detached
Cooling Type Central Air Conditioning, Air Exchanger
Fireplace Fuel Gas
Fireplace Present Yes
Fireplace Type Conventional
Heating Fuel Natural Gas
Heating Type Forced Air
Stories Total 1
Size Interior 1603 Sqft
Type House

Parking

Attached Garage
Parking Space(s) 4

Land

Acreage No
Size Irregular 8712.00
Size Total 8712 Sqft
Size Total Text 8712 Sqft

Rooms

Level Type Dimensions
Basement Bedroom 12 ft x 12 ft ,4 in
Basement 4pc Bathroom 8 ft x 8 ft ,10 in
Basement Laundry Room 6 ft x 8 ft ,10 in
Basement Bedroom 11 ft x 12 ft ,4 in
Basement Other 19 ft x 29 ft ,6 in
Main Level Bedroom 10 ft x 10 ft ,10 in
Main Level 4pc Bathroom 8 ft ,4 in x 7 ft ,4 in
Main Level Bedroom 10 ft x 10 ft ,10 in
Main Level 5pc Ensuite Bath 12 ft ,8 in x 13 ft ,2 in
Main Level Primary Bedroom 13 ft ,8 in x 13 ft
Main Level Living Room 19 ft ,4 in x 14 ft ,6 in
Main Level Dining Room 11 ft x 13 ft
Main Level Kitchen 14 ft x 13 ft

https://www.realtor.ca/real-estate/29450534/74-aaron-drive-north-quappelle-rm-no-187-echo-lake

Interested?

Contact us for more information


Generating Captcha

Your Favourites

 

No Favourites Found