LOADING

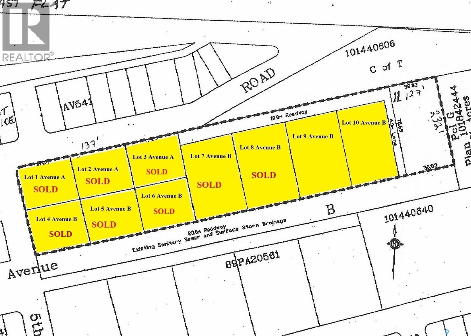
Lot 10 B Avenue Shellbrook Rm No. 493, Saskatchewan S0J 1G0

$12,500

Build your dream home! Small quiet community of Holbein only 20 minutes to Prince Albert and 10 minutes to Shellbrook. Close to many lakes & good hunting areas. Power, gas & sewer next to property. Construction must start with-in one year & must meet national building codes & Hamlet requirements. Buyer must supply own well/sandpoint & 2 compartment septic tank to connect to sewer line by an approved contractor. RTM's are welcome. Mobile homes are not allowed. Three year tax exemption on new house. GST applicable on purchase price. (id:51699)

Property Details

MLS® Number SK021247
Property Type Vacant Land
Neigbourhood Holbein (Shellbrook Rm No. 493)
Features Rectangular

Building

Type Unknown

Land

Acreage No
Size Frontage 142 Ft
Size Irregular 0.70
Size Total 0.7 Ac
Size Total Text 0.7 Ac

https://www.realtor.ca/real-estate/29011217/lot-10-b-avenue-shellbrook-rm-no-493-holbein-shellbrook-rm-no-493

Interested?

Contact us for more information


Generating Captcha

Your Favourites

 

No Favourites Found